Objektart
Adresse
Objektdaten
Informationen
Ausstattung
Details
Wir bieten Ihnen diese hochwertig sanierte Wohnung zum Erstbezug nach Sanierung an.
Die Renovierungsarbeiten sind bereits vollumfänglich abgeschlossen. Die Wohnung ist seitdem an eine solvente Mieterin vermietet.
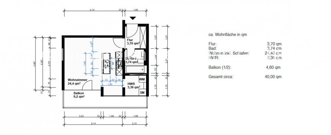
Sie betreten die Wohnung über einen gefliesten Eingangsbereich. Vor Ihnen befindet sich das innenliegende Wannenbad, welches mit den gleichen groß - formatigen Fliesen (60/60) in Betongrau ausgestattet ist.
Das Badezimmer hat eine schöne gemütliche Größe. Das üppige Wohnzimmer verfügt über eine Designerküche mit freistehendem Küchenblock in matt schwarz.
Das Wohnzimmer und der dazugehörige Balkon sind komplett nach Westen ausgerichtet und Sie haben einen schönen Blick in den Garten der Wohnanlage.
Durch die Lage der Wohnung im 6. Stock ist diese auch an Schlechtwettertagen ausgesprochen hell und gemütlich.
Zur Wohnung gehören außerdem ein Kellerraum. Das Haus wurde im Jahre 2013 saniert.
Wir freuen uns Ihnen die Wohnung in Form eines persönlichen Besichtigungstermins näher bringen zu dürfen.
*** hochwertige Bauausführung
*** Sanitärausstattung mit Markengeräten
*** Feinsteinzeug mit 60x60 Format als Fliesenbelag
*** Badewanne
*** Echtholzparkettboden in Eiche
*** indirekte Wandbeleuchtung im Wohnzimmer
*** hochwertige Einbauküche
Der Stadtteil München Obersendling / Solln gehört zu den begehrtesten Stadtteilen insbesondere für Familien mit Kindern.
Aufgrund der hervorragenden Anbindung an den öffentlichen Nahverkehr erreichen Sie das gesamte Münchner Stadtgebiet ohne Probleme.
Zum anderen ist dieser Stadtteil einer der grünsten in München. Selten sieht man so viele Parks und Grünanlagen wie hier.
Große Häuser und kleinere Mehrfamilienhäuser reihen sich hier harmonisch aneinander.
Neben der hervorragenden Infrastruktur verfügt Obersendling - Solln auch über ein exzellentes Angebot an Schulen, Kindergärten und weiterführenden Schulen.
Verwirklichen Sie hier Ihren Traum vom Eigenheim und überzeugen Sie sich selbst von den Vorzügen dieser einzigartigen Wohnlage.
Entfernungen:
1 Min. zur Bus-Station (Geisenhauserstraße)
5 Min. zur U-Bahn (Machtlfinger Straße)
25 Min. in die Innenstadt (Marienplatz)
Dieses Exposé soll in knapper Form die wesentlichen Daten des Objekts vermitteln.
Die Erfahrung lehrt, dass zu einer vernünftigen Beurteilung eines Objekts alleine die Besichtigung vor Ort sowie das persönliche Gespräch mit uns gehören.
Zu beidem stehen wir, ebenso wie für weitere Informationen und Rückfragen, selbstverständlich gerne zur Verfügung.
Trotz sorgfältiger Recherche kann für etwaige Irrtümer keine Haftung übernommen werden. Eine Zwischenvermietung oder Zwischenverkauf bleibt vorbehalten.
Für weitere Details und alle relevanten Informationen fordern Sie bitte unser ausführliches Exposé an. Wir übersenden Ihnen gerne weiterführende Unterlagen.
Vereinbaren Sie am besten noch heute einen Besichtigungstermin und lassen Sie sich von Ihrer neuen Traumimmobilie verzaubern!
Ansprechpartner
Telefax: 089 - 31287459
info@immobilien-herrmann.net
Energieausweis (Verbrauchsausweis)
103,80 kWh / (m²*a) Energieverbrauchskennwert
103,80 kWh / (m²*a) Energieverbrauchskennwert
103,80 kWh / (m²*a) Energieverbrauchskennwert
Weitere Informationen
| Wesentlicher Energieträger | GAS |
| Energieausweis gültig bis | 2034-07-10 |
| Energieausweis Jahrgang | ab dem 1.5.2014 |
| Energieverbrauch für Warmwasser | enthalten |
| Energieausweis Werteklasse | D |
| Energieausweis Baujahr | 1967 |
| Energieausweis Gebäudeart | Wohngebäude |
| Heizung | Zentralheizung |
| Befeuerung | Gas |
Ich bin damit einverstanden, dass mir Karten von Google angezeigt werden. Es gelten die Datenschutzbedingungen von Google (https://policies.google.com/privacy).
Ich bin einverstanden