Objektart
Adresse
Objektdaten
Informationen
Ausstattung
Details
Stadthäuserquartett in ansprechender Architektur
Diese 4 geplanten Neubau-Stadthäuser bestechen durch Ihre einzigartige extravagante, sowie moderne Architektur.
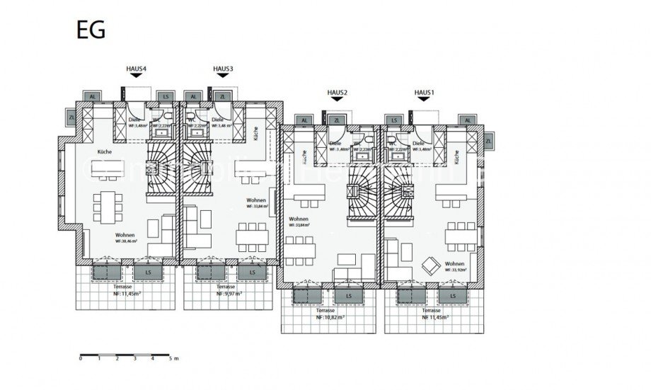
Die Häuser sind mit einem durchdachten Grundriss versehen und zeitgemäß geplant. Hierzu zählen ein offener Küchenbereich und ein großes Wohnzimmer mit Designertreppe ins Obergeschoss.
Das Obergeschoss verfügt jeweils über zwei bis drei geräumige Schlafzimmer. Das Badezimmer ist jeweils nach Norden ausgerichtet.
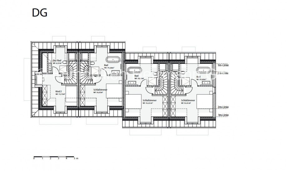
Das Dachgeschoss bietet einen eigenen Bereich für die Eltern mit Badezimmer und Schlafzimmer.
Eine hochwertige und zukunftsgerichtete Ausstattung in Bezug auf Energie und Design vervollständigen dieses extravagante Projekt.
Federführend für das Erscheinungsbild sind die klaren Linien und vereinzelte Stuckarbeiten. Diese verleihen diesem Projekt ihren einzigartigen Charakter.
Wir freuen uns Ihnen dieses erstklassige Projekt in einem persönlichen Gespräch näher zu bringen.
* Wohntyp: Reihenhaus, Haus
* Einheiten: 4
* Preis: 1.099.500 EUR - 1.399.500 EUR
* Zimmeranzahl: 5 - 5,5 Zimmer
* Wohnfläche(n): 126,35 m² - 128,01 m²
* Bezugsfertig: Die Fertigstellung ist für Anfang 2026 avisiert
* Kategorie: Gehoben
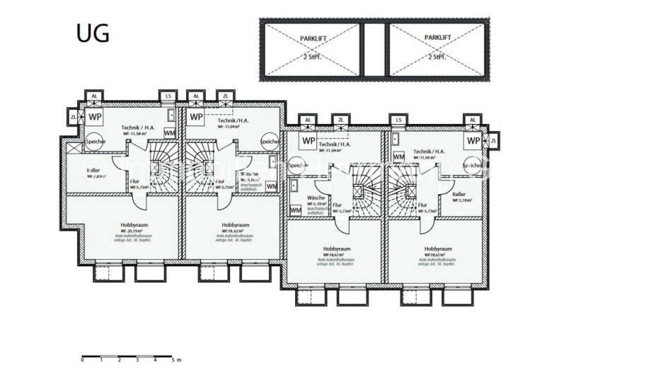
Insgesamt stehen jedem Haus eine Unterflurparkgarage zur Verfügung.
Der Preis je Unterflurparker beträgt 39.500,00 Euro.
1. Bei der angegebenen Nutzfläche sind alle Flächen vollständig enthalten.
2. Bei der angegebenen Wohnfläche sind das Bad, Flur im Untergeschoss, der Hobbyraum, sowie der Balkon und die Terrasse zu 1/2 mitberücksichtigt.
3. Der Energieausweis wird unverzüglich nach Fertigstellung des Gebäudes erstellt.
München - Berg am Laim
Der Stadtteil München Berg-am-Laim gehört zu den begehrtesten Stadtteilen insbesondere für Familien mit Kindern.
Aufgrund der hervorragenden Anbindung an den öffentlichen Nahverkehr erreichen Sie das gesamte Münchner Stadtgebiet ohne Probleme. Zum anderen ist dieser Stadtteil einer der grünsten in München.
Selten Sieht man so viele Parks und Grünanlagen wie hier. Große Häuser und kleinere Mehrfamilienhäuser reihen sich hier harmonisch aneinander.
Neben der hervorragenden Infrastruktur verfügt Berg-am-Laim auch über ein exzellentes Angebot an Schulen, Kindergärten und weiterführenden Schulen.
Verwirklichen Sie hier Ihren Traum vom Eigenheim und überzeugen Sie sich selbst von den Vorzügen dieser einzigartigen Wohnlage.
Entfernungen:
5 Min. zur U-Bahn (Kreillerstraße)
10 Min. zur U-Bahn (Kreillerstraße)
25 Min. in die Innenstadt (Marienplatz)
Dieses Exposé soll in knapper Form die wesentlichen Daten des Objekts vermitteln.
Die Erfahrung lehrt, dass zu einer vernünftigen Beurteilung eines Objekts alleine die Besichtigung vor Ort sowie das persönliche Gespräch mit uns gehören.
Zu beidem stehen wir, ebenso wie für weitere Informationen und Rückfragen, selbstverständlich gerne zur Verfügung.
Trotz sorgfältiger Recherche kann für etwaige Irrtümer keine Haftung übernommen werden. Eine Zwischenvermietung oder Zwischenverkauf bleibt vorbehalten.
Für weitere Details und alle relevanten Informationen fordern Sie bitte unser ausführliches Exposé an. Wir übersenden Ihnen gerne weiterführende Unterlagen.
Vereinbaren Sie am besten noch heute einen Besichtigungstermin und lassen Sie sich von Ihrer neuen Traumimmobilie verzaubern!
Ansprechpartner
Telefax: 00498931287459
info@immobilien-herrmann.net
Ich bin damit einverstanden, dass mir Karten von Google angezeigt werden. Es gelten die Datenschutzbedingungen von Google (https://policies.google.com/privacy).
Ich bin einverstanden